FS-OMEGA RHOMBOS Decke-Lichtkombination

Flure in harmonischer Kombination aus Decke und Licht

Das Decken- und Lichtsystem FS-OMEGA RHOMBOS ist für den Einsatz in Fluren optimiert. Die Streckmetallelemente werden dabei durch die an beiden Flurseiten angebrachten OMEGA Lichtkanäle getragen und bilden so eine harmonische Einheit. In den Lichtkanälen lassen sich neben der Beleuchtung auch Haustechnik wie z.B. Lüftung, Sprinkler oder Leitungen integrieren.

  • Lichtkanal als sichtbare Unterkonstruktion
  • In Lichtkanäle lässt sich auch die Haustechnik unterbringen

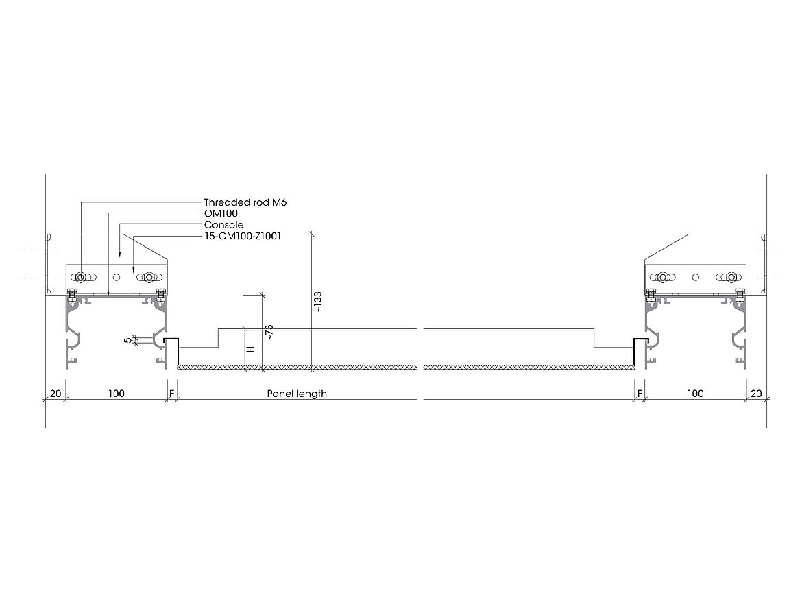
Technische Information

Abmessungen/Plattengrößen:

Plattenlänge: ≤3500mm
Plattenbreite: ≤1300mm
Empfohlene Plattenfläche: ≤3m²

Lichtkanal: B=100mm, H=73mm, L=max. 6000mm endlos verlegbar
Leuchteneinsatz: L=1120, 1680 oder 2240mm
Lichtfarbe: 3000K, 4000K, CRI>80
Leistung: 30W/m
Leuchtenoutput:  4240lm/m (3000K), 4460lm/m (4000K)        

Dimmbarkeit: DALI dimmbar
Treiber: integriert
Spannungsversorgung: 230 V/50 Hz
IP 20
Schutzklasse I

Material und Oberfläche:

Streckmetalldecke:
Verzinktes Stahlblech mit Pulverbeschichtung. Aluminium mit Pulverbeschichtung, bandeloxiert oder spiegelglänzend. Edelstahl gebürstet oder spiegelglänzend.
Pulverbeschichtung im Standard: weiß (RAL 9016 matt DUROPLAN Typ 1). Schichtdicke: 60µm. Andere Pulverbeschichtungen auf Wunsch möglich.
Lichtkanal: eloxiertes Aluminiumprofil, Abdeckung Acrylglas opal. Andere Lichttechniken verfügbar. 

Akustik und Masche:

Die Schallabsorption erfolgt standardmäßig über schwarzes Akustikvlies (αw=ca. 0,73). Verschiedene Maschengrößen verfügbar.

Brandverhalten:

Streckmetalldecke: nicht brennbar DEFEO mit Brandschutzklassifizierung A2-s1.dO
Aus Stahlblech: Optional DEFEO PLUS (A1)