OMEGA 40 Lichtkanalsystem

Elegante Akzentuierung mit der Licht-LINIE

OMEGA 40 ist ein vielseitig einsetzbares Lichtkanalsystem mit LED-Technologie. Mit nur 40 mm Kanalbreite ist die Lichtlinie für viele architektonische Anwendungen die optimale Lösung und betont die architektonischen Geometrien mit Eleganz. OMEGA 40 basiert auf einem stabilen Grundprofil mit Längen bis zu 6 m.  

  • System mit Langfeldplatten von durlum kombinierbar
  • Systemkomplementierung durch Abhänge- und Verbindersysteme
  • Endlosverlegung möglich.
  • Integration in polygonale Deckenformen möglich.

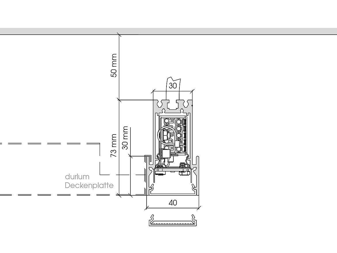
Technische Information

Lichtkanal

B: 40 mm
H: 73 mm
Oberfläche: Aluminium eloxiert, pulverbeschichtet auf Wunsch
 

Abdeckungen

PMMA opal oder mikroprismatisch für UGR< 19-Anwendungen
 

Leuchtendaten

Lichtfarbe: 3000 K, 4000 K, CRI > 80
Leuchtenoutput: 3796 lm/m (3000 K), 3968 lm/m (4000 K)          
Dimmbarkeit: DALI dimmbar
Treiber: Integriert
Spannungsversorgung: 230 V/50 Hz
Schutzart: IP 20
Schutzklasse: I