FS-OMEGA Decke-Lichtkombination

Flure in harmonischer Kombination aus Decke und Licht

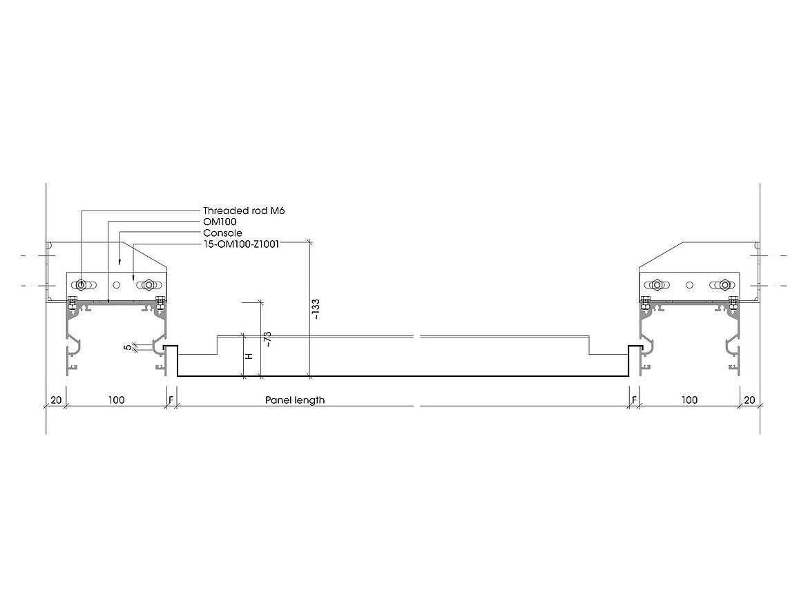
FS-OMEGA wurde extra für Flure konzipiert. Die einzelnen Langfeldplatten werden durch die Lichtkanäle getragen, die sich an beiden Flurseiten befinden. Das Einhängesystem ist dabei einfach und werkzeuglos zu demontieren. Optional kann FS-OMEGA auch nur mit einseitig angebrachtem Lichtkanal ausgeführt werden.

  • Lichtkanal als sichtbare Unterkonstruktion
  • In Lichtkanäle lässt sich auch die Haustechnik unterbringen

Technische Information

Abmessungen/Plattengrößen:

Plattenlänge: ≤3500mm
Plattenbreite: ≤1300mm
Empfohlene Plattenfläche: ≤3m²

Lichtkanal: B=100mm, H=73mm, L=max. 6000mm endlos verlegbar
Leuchteneinsatz: L=1120, 1680 oder 2240mm
Lichtfarbe: 3000K, 4000K, CRI>80
Leistung: 30W/m
Leuchtenoutput:  4240lm/m (3000K), 4460lm/m (4000K)        

Dimmbarkeit: DALI dimmbar
Treiber: integriert
Spannungsversorgung: 230 V/50 Hz
IP 20
Schutzklasse I

Material und Oberfläche:

Langfeldplatte:
Verzinktes Stahlblech mit Pulverbeschichtung. Aluminium mit Pulverbeschichtung, bandeloxiert oder spiegelglänzend. Edelstahl gebürstet oder spiegelglänzend.

Pulverbeschichtung im Standard:
weiß (RAL 9016 matt DUROPLAN Typ 1). Schichtdicke: 60µm. Andere Pulverbeschichtungen auf Wunsch möglich.

Bedruckung:

Pulverbeschichtete Zuschnitte zusätzlich mit Motiven und Texturenbedruckbar
Lichtkanal: eloxiertes Aluminiumprofil, Abdeckung Acrylglas opal. Andere Lichttechniken verfügbar. 

Akustik und Perforation:

Standardperforation der Langfeldplatte: RG-L15. Die Schallabsorption erfolgt standardmäßig über schwarzes Akustikvlies (αw=ca. 0,73). Andere Perforationen und Absorptionsmaterialien sind möglich. 

Brandverhalten:

Langfeldplatte: Im Standard glatt oder perforiert: nicht brennbar DEFEO mit Brandschutzklassifizierung A2-s1.dO
Aus Stahlblech: Optional DEFEO PLUS (A1)