QUADRA EINSTEGRASTER

Rasterdecke mit schwerelosem Charakter

Die Einstegrasterdecke QUADRA überzeugt mit ihrem leichten, luftigen Charakter. Dieser Charakter kann durch Perforationen noch verstärkt werden. Das Basismodell der Einstegraster ist hervorragend geeignet für Leuchtenraster oder als Abdeckung für Oberlichter. Außerdem kann es mit seinen kleinen Zellen und der geringen Höhe überzeugen. 

  • Elemente werden nach Maßangaben der Kunden gefertigt
  • Ästhetische Integration von punktförmigen Leuchten möglich

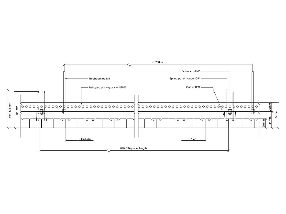
Technische Information

Abmessungen:

Verlegung:

U94:
Steghöhe: 19* – 30** – 40 (50 – 62) mm
Zellenmaß 0,6 mm Materialstärke: 30-60mm
Zellenmaß 0,95 mm Materialstärke: 30-80mm
* Zellenmaß: 20 mm | **Standard

 T15/ T24 Trageschiene:
Steghöhe: 19* – 30** – 40 (50 – 62) mm
Zellenmaß 0,6 mm Materialstärke: 17-100mm
* Zellenmaß: 20 mm | **Standard

Felder:

1200 x 600 mm

Material und Oberfläche:

Aluminium 0,6mm. Oberfläche bandlackiert
Lamellen: weiß, schwarz, RAL 9006, RAL 7012, natureloxiert, weitere Farben auf Wunsch

Akustik und Perforation:

Standardperforation: Typ Linea oder Perfo Quadra. Weitere Perforationen möglich
Schallabsorption: In Verbindung mit Breitbandabsorber dur-SONIC TUBE (αw=  0,80; NRC=  0,75)