LIVA RASTERDECKE

Rasterdecke mit vielen Gestaltungsmöglichkeiten

Das multidirektionale Raster LIVA überzeugt mit einem luftigen, homogenen Erscheinungsbild. In unterschiedlichen Höhen kombinierbar, bieten die rechtwinklig zueinander angeordneten Blattlamellen aus Aluminium viele Gestaltungsmöglichkeiten. Dadurch entsteht ein dynamisches Deckenbild, mit dem individuelle Akzente gesetzt werden können. 

  • Jede Blattlamellenreihe einzeln abklapp- und abnehmbar

Technische Information

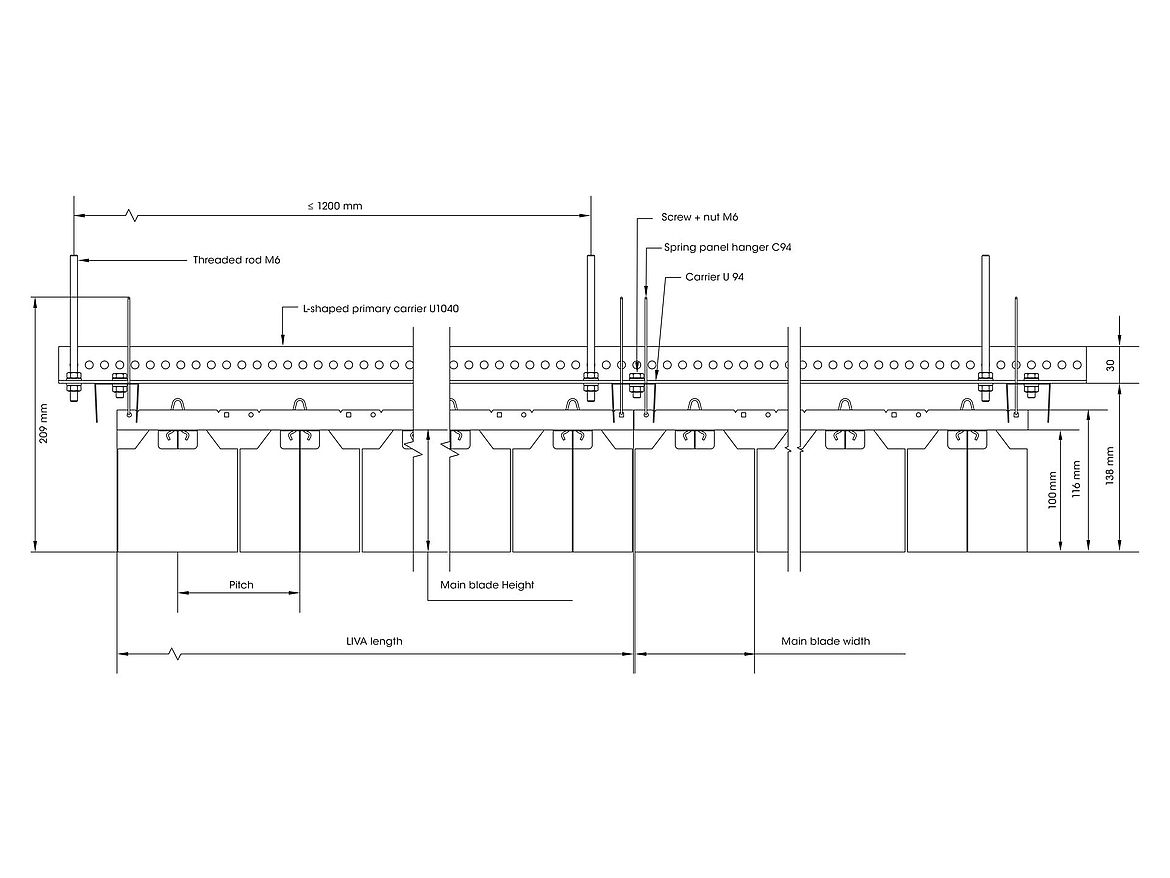
Abmessungen:

Breite x Höhe: 98 x 100mm, 150mm, 200mm
Schritt: 100 mm, 120 mm

Material und Oberfläche:

Aluminium 0,8mm
Lamellen: weiß, andere Farben  auf  Anfrage.

Akustik:

Schallabsorption: In Verbindung mit Breitbandabsorber dur-SONIC TUBE (αw=0,80; NRC=  bis 0,75 möglich)