SECURA LED

Einbauleuchte mit blendfreier, gleichmäßiger Ausleuchtung

SECURA-C100 ist eine direkt strahlende Einbauleuchte zur Integration in dur-F30 Brandschutzdecken. Mit ihrer geringen Aufbauhöhe, der beidseitigen Deckenbündigkeit und ihrem klassischen, rahmenlosen Design passt sie sich optimal in Metalldecken von durlum ein. Durch die satinierte PMMA Abdeckung wird eine blendfreie, gleichmäßige Ausleuchtung erzielt. 

  • Einbau in Gipskarton Brandschutzdecken möglich
  • Reibungsloser Einbau im Deckenhohlraum
  • Wartungsfreundlich, da von unten revisionierbar

Technische Information

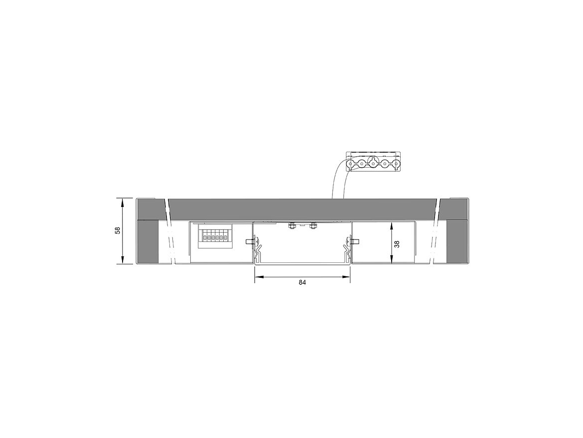
Abmessung:

L: 854 mm
B: 85 mm

Abdeckung:

PMMA                                                               

Leuchtendaten:

Lichtfarbe: 3000 K, 4000 K, CRI > 80
Leuchtenoutput: 3741 lm (3000 K), 3910 lm (4000 K)      
Dimmbarkeit: DALI dimmbar
Treiber: Integriert
Spannungsversorgung: 230 V / 50Hz
Schutzart: IP 20
Schutzklasse: I

Abmessung:

L: 1134 mm
B: 85 mm

Abdeckung:

PMMA                                                               

Leuchtendaten:

Lichtfarbe: 3000 K, 4000 K, CRI > 80
Leuchtenoutput: 3741 lm (3000 K), 3910 lm (4000 K)      
Dimmbarkeit: DALI dimmbar
Treiber: Integriert
Spannungsversorgung: 230 V / 50Hz
Schutzart: IP 20
Schutzklasse: I

Abmessung:

L: 1414 mm
B: 85 mm

Abdeckung:

PMMA                                                               

Leuchtendaten:

Lichtfarbe: 3000 K, 4000 K, CRI > 80
Leuchtenoutput: 3741 lm (3000 K), 3910 lm (4000 K)      
Dimmbarkeit: DALI dimmbar
Treiber: Integriert
Spannungsversorgung: 230 V / 50Hz
Schutzart: IP 20
Schutzklasse: I